- Hem /
- Alla mallar /
- Företagsmallar /
- Företagssäkerhet /
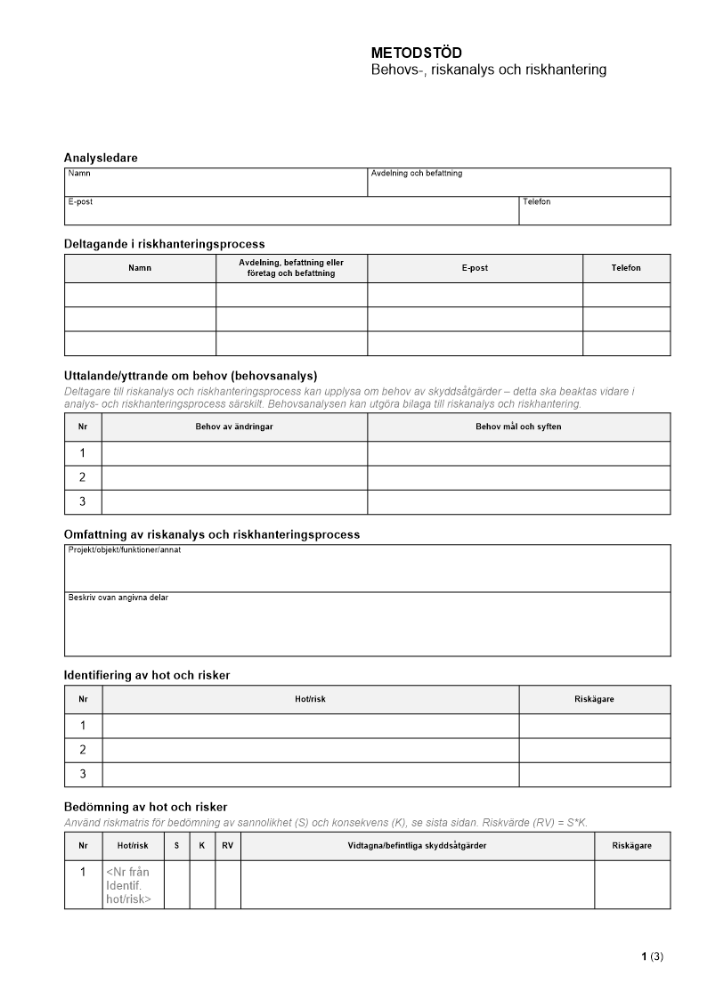
- Metodstöd - Behovs- och riskanalys samt riskhantering 2026
Detta dokument kan förifyllas med data från din profil
Välj företagsprofill
Ladda ned med profil Ladda ned utan profilDetta dokument kan förifyllas med data från din profil
Välj företagsprofill
Ladda ned med profil Ladda ned utan profil